1 / 5The Henry
Spacious, Flexible & Thoughtfully Designed
Ideal For
About The Henry
Spacious, flexible, and thoughtfully designed, The Henry is a two-bedroom model that makes room for more—more comfort, more storage, and more possibilities. With its elevated features and adaptable layout, it's ideal for families, shared living, or rental opportunities. The Henry combines functionality with high-impact design to meet your long-term needs.
Not Sure a Detached Unit is Right for You?
We also offer interior/basement conversions, garage conversions, and additions to existing homes. Every property is different, and we specialize in finding the right ADU solution for your needs and budget.
Explore All Configuration TypesKey Features
Every The Henry comes equipped with premium finishes and thoughtful design elements.
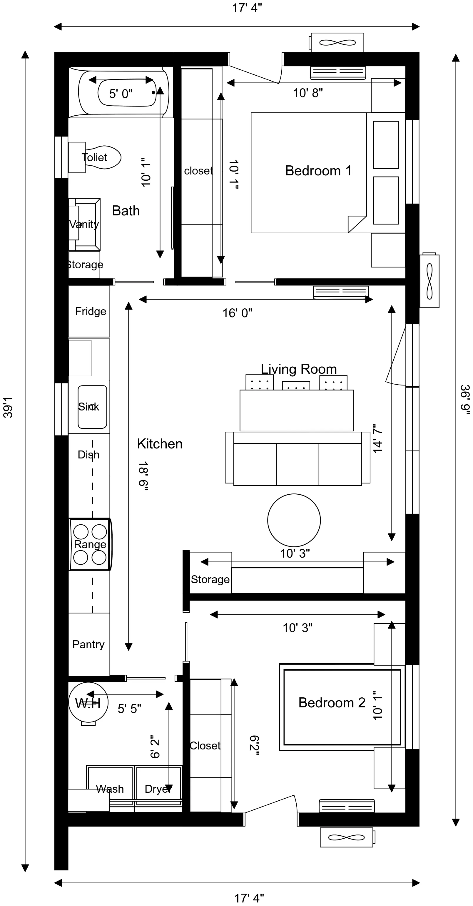
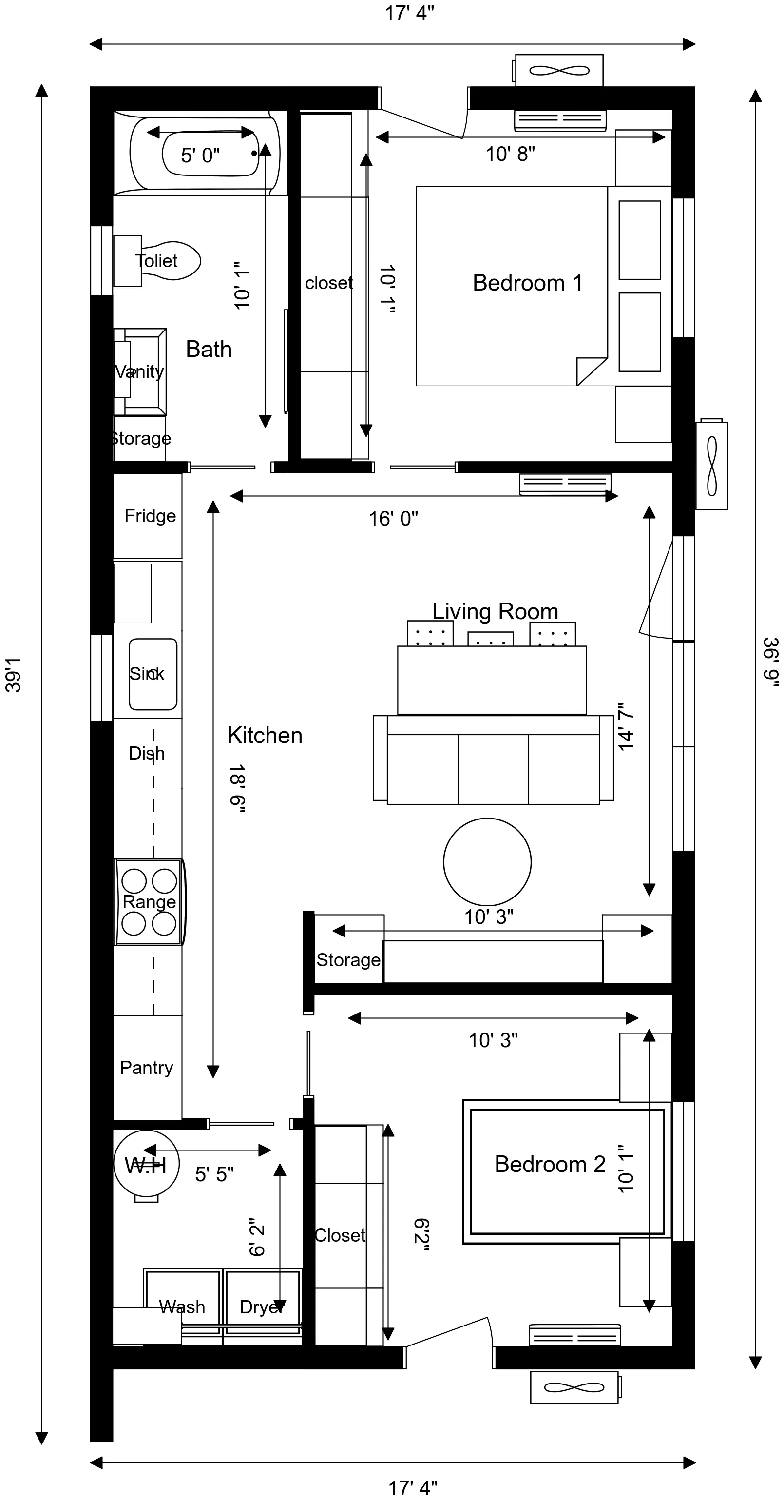
Floor Plan
541 square feet of thoughtfully designed living space.
Build Specifications
Premium materials and finishes included as standard with every The Henry.
Exterior
- RoofingStanding seam metal roof in matte black
- Siding7" premium horizontal vinyl siding, EPS foam-backed for insulation
- Siding ColorsGranite, Shamrock, Pebble Clay, Linen
- Windows & DoorsLarge black-framed terrace doors, vinyl windows with black exterior finish
- TrimBlack soffit, fascia, and eavestroughs
Standard Inclusions
- PlanningFull planning & building permits
- FoundationStandard helical piers (concrete slab optional)
- Climate ControlDuctless heat pump (heating & cooling)
- FramingOntario Building Code-compliant wood framing
- CountertopsQuartz countertops
- Windows & DoorsBlack vinyl windows & doors
- Water HeaterElectric water heater
- Electrical100 amp electrical panel
- WarrantyNew Home Tarion Warranty
Interior Options
- FlooringDurable vinyl plank (4 color options)
- Kitchen Cabinets3 colors, flat or shaker profiles
- Vanity3 colors, flat or shaker profile
- Closets & ShelvingBuilt-in options with 3 finish choices
- AppliancesFridge, stove, dishwasher, microwave with vent hood
- Kitchen40" upper cabinets, built-in pull-out garbage bin
- BathroomStandard fiberglass tub with surround
- Upgrade OptionWalk-in shower with glass door (+$2,500)
Explore Other Models
Not quite right? Check out our other ADU models.
321 sq ft
404 sq ftReady to Build Your The Henry?
Contact us today for a free consultation. We'll answer your questions and help you get started on your ADU project.
